- Typ domu: rodinný dům
- Druh nabídky: prodej rodinných domů v Praze 9
- Stav objektu: po rekonstrukci
- Užitná plocha: 301 m2
- Plocha pozemku: 340 m2
- Energetická náročnost budovy: G - Mimořádně nehospodárná
- Druh objektu: cihlová
- Rok kolaudace: 1999
- Zastavěná plocha: 145
- Elektřina: Elektro - 230 V, Elektro - 400 V
- Počet podlaží objektu: 3
- Odpad: Kanalizace
- Topení: Ústřední - plynové
- K nastěhování: 30.11.2025
- Voda: Voda - dálkový vodovod
- Lokalita:
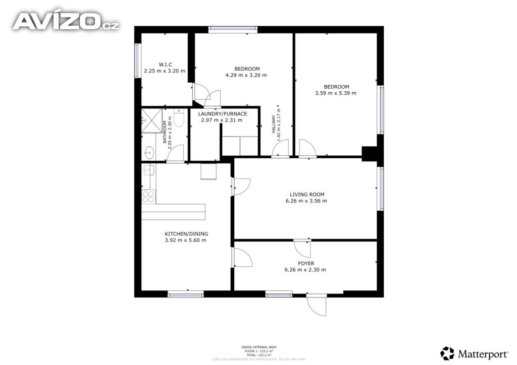
Dům byl kolaudován v roce 1999 a jeho celková zastavěná plocha činí 145 m2. V 1NP (přízemí) je vstupní chodba, kuchyň s jídelnou, obývací pokoj, dvě ložnice, koupelna se sprchovým koutem a šatna. Ve 2. NP (první patro) se nachází kuchyňský kout spojený s obývací pokojem a terasou, dvě ložnice, pracovna, koupelna s vanou a toaletou a druhá samostatná toaleta. Ve 3. NP (druhé patro) jsou dvě samostatné ložnice. Celkový součet užitných ploch místností činí 301 m2.
Dům je postaven z cihel a není zateplen. Jako střešní krytina je použita betonová taška Bramac. Vytápění je řešeno plynovým kotlem, ohřev vody plynovým bojlerem. Na dvoře a pozemku o rozloze 340 m2 se nachází garáž pro dvě auta o rozloze 37 m2. Vedle domu je dlážděné nádvoří a kolem domu pruhy zeleně. Nemovitost je napojena na veřejnou kanalizační síť a vodovodní řad, taktéž jsou zavedeny přípojky elektřiny a plynu. Měsíční zálohové platby na energie činí v současné době 8 tis. plyn, 2 tis. elektřina.
V blízkosti najdeme základní i mateřskou školu, v docházkové vzdálenosti pak základní služby občanské vybavenosti. Dům se nachází v atraktivní lokalitě s výbornou dostupností pomocí MHD do Prahy i do Brandýsa nad Labem. Je vhodný pro vícegenerační bydlení početné rodiny, nebo i provozování drobného podnikání. Průkaz energetické náročnosti budovy není v tuto chvíli k dispozici, proto je nemovitost zařazena v kategorii G.
Pro bližší informace a prohlídku, mě neváhejte kontaktovat.
Kontakt
Martin Pelc
Další podobné inzeráty:
-
Exkluzivně nabízíme prodej řadového rodinného domu s garáží ...
Kód zakázky: 231740, Krajní řadový dům z r. 1975 s dispozicí 6+1 se nachází v klidné části městské části Vinoře. Celková……
11 900 000,- Kč Moravanská, Praha, Vinoř -
Prodej rodinného domu 4+2/G, 167m2, pozemek 502m2, ul. Danie...
Kód zakázky: N2516769, Představujeme Vám rodinný dům se samostatnou garáží a dílnou, dispozičně řešený jako 4+2 (2x2+1) s……
13 900 000,- Kč Danielova, Praha, Čakovice -
Prodej rodinného domu 156 m², Praha
Kód zakázky: 75867, Ve výhradním zastoupení majitele vám představuji příležitost koupě krajního řadového domu o celkové vnitřní……
14 490 000,- Kč Dany Medřické, Praha, Satalice -
Prodej rodinné domy, 105 m2 - Praha - Kyje
Kód zakázky: 69632, Nabízíme k prodeji rodinný dům 3+1/G, S, s podlahovou plochou 90 m2, 15 m2 garáž, Praha 9 - Kyje. RD se……
14 990 000,- Kč Splavná, Praha, Kyje -
Prodej domu, UP 336m2, pozemek 734m2, ul. Moravanská, Praha ...
Kód zakázky: , V zastoupení majitelů nabízíme zajímavý dům v atraktivní a velmi klidné části vilové čtvrti Prahy - Vinoře……
33 000 000,- Kč Moravanská, Praha, Vinoř -
Pronájem domu 5+kk/T 180 m2, zahrada 1324 m2, Praha 10 - Kř...
Kód zakázky: N2516906, Nabízíme na pronájem prostorný rodinný dům 5+kk o obytné ploše cca 180 m2 + 20 m2 zimní zahrada a pozemek……
59 500,- Kč/měsíc Ibišková, Praha
- Prohlédněte si také inzerci nemovitostí v nejbližším okolí: rodinné domy Praha 6, rodinné domy Praha 4, rodinné domy Praha 1, rodinné domy Praha 8.
- Podívejte se na další nabídky rodinných domů v Praze 9: prodej rodinných domů v Praze 9, pronájem rodinných domů v Praze 9
- Další podobné inzeráty najdete na stránce rodinné domy Praha.
- Nenašli jste, co jste hledali? Prohlédněte si další inzeráty v rubrice rodinné domy nebo v sekci Inzerce nemovitostí.























