- Typ domu: rodinný dům
- Druh nabídky: prodej rodinných domů v okolí Brna
- Stav objektu: výstavba
- Užitná plocha: 140 m2
- Plocha pozemku: 248 m2
- Energetická náročnost budovy: B - Velmi úsporná
- Ukazatel energetické náročnosti: 66 kWh/m2 za rok
- Lodžie: Ano
- Druh objektu: cihlová
- Zastavěná plocha: 131
- Elektřina: Elektro - 230 V, Elektro - 400 V
- Podlahová plocha (m2): 150
- Plocha zahrady (m2): 117
- Odpad: Kanalizace
- Topení: Ústřední - plynové
- K nastěhování: 01.04.2026
- Doprava: MHD, dálnice, vlak, autobus, silnice
- Voda: Voda - dálkový vodovod
- Lokalita:
Hledáte novostavbu, která bude během několika měsíců dokončena na klíč a přesně podle Vašich představ?
V malebné části Horákov, v obci Mokrá-Horákov, Vám nabízím moderní rodinný dům s dispozicí až 6+kk, zahradou a garáží - ideální místo pro pohodové rodinné bydlení jen pár minut od Brna.
Dům má užitnou plochu přibližně 140 m2, podlahová plocha činí asi 150 m2 a pozemek má celkovou výměru 248 m2. Součástí je také garáž o velikosti přibližně 12 m. Nemovitost se v současné době nachází ve fázi hrubé stavby, přičemž zkušená stavební firma je připravena dům dokončit na klíč zhruba do půl roku. Kompletní rozpočet dokončení je k dispozici na vyžádání.
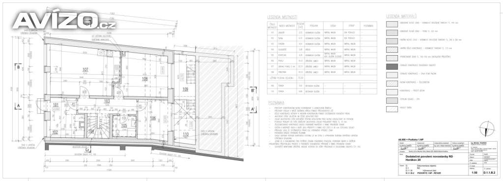
1. NP
Zádveří - 3.72 m2; Šatna - 6.12 m2, Chodba - 9.01 m2, Schodiště - 3.28 m2, Koupelna - 4.29 m2, Pokoj - 10.12 m2, Obývací pokoj s KK - 25.37 m2, Pracovna - 10.12 m2
Užitná plocha celkem: 72.02 m2
Terasa - 5.61 m2, Terasa - 6.66 m2
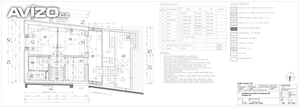
2. NP
Schodiště - 0.55 m2, Chodba - 3.94 m2, Technická místnost - 3.19 m2, Koupelna - 6.21 m2, Ložnice - 18.70 m2, Ložnice - 15.92 m2, Pracovna - 10.07 m2, Terasa - 14.20 m2
Užitná plocha celkem: 72.77 m2
Vyrovnávací podesta - 17.46 m2, Schodiště - 17.46 m2
Velkou výhodou je možnost přizpůsobit si finální podobu domu podle vlastních přání - ať už jde o interiér, materiály nebo doplňkové úpravy. V případě potřeby lze nemovitost upravit i na dvě samostatné bytové jednotky, což umožňuje vícegenerační bydlení, pronájem nebo propojení bydlení s podnikáním.
Parkování je možné na veřejném prostranství přímo před domem. Na pozemku se navíc nachází menší garáž, která je vhodná k rekonstrukci.
Lokalita, která má své kouzlo
Mokrá-Horákov leží v těsné blízkosti Brna a je obklopena krásnou přírodou Moravského krasu. V okolí se nachází množství turistických i cyklistických tras, včetně známé jeskyně Pekárna. Obec nabízí kompletní občanskou vybavenost a bohaté možnosti kulturního i sportovního vyžití, díky čemuž je ideální nejen pro rodinný život, ale i pro aktivní způsob trávení volného času.
Zaujala Vás tato nemovitost? Zavolejte mi pro více informací nebo domluvení prohlídky.
Kontakt
Jiří Mach
Další podobné inzeráty:
-
Prodej hrubé stavby rodinného domu s možností dokončení firm...
Kód zakázky: 232726, Hledáte hrubou stavbu s možností dokončení vlastním silami nebo stavební firmou během pár měsíců podle……
6 999 000,- Kč Mokrá-Horákov, Horákov, okres Brno-venkov -
Prodej rodinný dům 5+1 (CPP 147m2), garáž 20 m2, pozemek 552...
Kód zakázky: 232743, Samostatně stojící rodinný dům s kouzelnou zahradou a soukromou hospůdkou - Kaly u TišnovaHledáte místo……
4 600 000,- Kč Kaly, okres Brno-venkov -
Prodej Rodinného domu Rosice u Brna
Kód zakázky: 232365, Exkluzivně nabízíme prodej rodinného domu v Rosicích u BrnaJedná se o samostatně stojící dům typu bungalov……
12 900 000,- Kč Říčanská, Rosice, okres Brno-venkov -
Prodej, Rodinný dům, 84 m2
Kód zakázky: 133902, Nabízíme k prodeji útulný dům 3+1 v klidné obci Ketkovice, jen pár minut od Brna. Nemovitost je ideální k……
6 300 000,- Kč Ketkovice, okres Brno-venkov -
Prodej rodinného domu 200 m², Tetčice
Kód zakázky: 77756, Rodinný dům v Tetčicích – ideální příležitost pro rekonstrukci podle vašich představ! Hledáte dům s……
10 990 000,- Kč Palackého, Tetčice, okres Brno-venkov -
Prodej moderního viladomu na klíč 424 m2 - Troubsko u Brna
Kód zakázky: 232720, Exkluzivně vám nabízíme novostavbu moderního viladomu se dvěma luxusními byty s terasami, garážemi……
Pod vinohrady, Troubsko, okres Brno-venkov
- Prohlédněte si také inzerci nemovitostí v nejbližším okolí: rodinné domy Břeclav, rodinné domy Vyškov, rodinné domy Blansko, rodinné domy Hodonín.
- Podívejte se na další nabídky rodinných domů v okolí Brna: prodej rodinných domů v okolí Brna, pronájem rodinných domů v okolí Brna
- Další podobné inzeráty najdete na stránce rodinné domy v okolí Brna.
- Nenašli jste, co jste hledali? Prohlédněte si další inzeráty v rubrice rodinné domy nebo v sekci Inzerce nemovitostí.



























