- Druh nabídky: prodej chat a chalup ve Frýdku-Místku
- Typ nemovitosti: chata
- Stav objektu: před rekonstrukcí
- Užitná plocha: 34 m2
- Vlastní pozemek (m2): 397
- Poloha objektu: samostatný
- Druh objektu: dřevěná
- Umístění objektu: klidná část obce
- Zastavěná plocha: 48
- Počet podlaží objektu: 2
- Podlahová plocha (m2): 61
- Plocha sklepu (m2): 27
- Elektřina: Elektro - 230 V
- Charakter okolní zástavby: rekreační
- Plocha zahrady (m2): 349
- Počet podlaží pod zemí: 1
- Lokalita:
Chata s evidenčním číslem se nachází na polosamotě s hezkým výhledem. Výměra pozemku je 397 m². Je v osobním vlastnictví a přístup je zajištěn po obecní komunikaci.
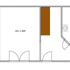
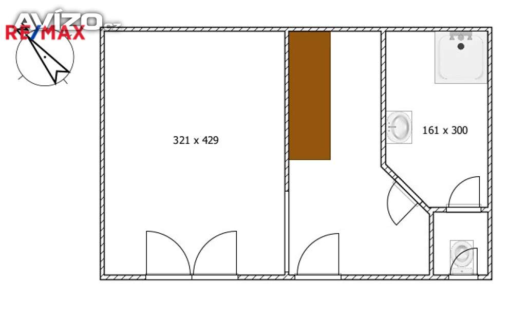
Chata má zastavěnou plochu 48 m² a podlahovou plochu 64 m².
Ke vstupu do chaty můžeme využít vchod do PP který je z jedné strany v úrovni terénu. Z chodby je vstup do kuchyně, koupelny, toalety a do budoucna se počítá se schodištěm do 1NP. V těchto prostorech již začala rekonstrukce avšak není dokončena. Cihelné zdivo, betonový strop, podlahová plocha 29 m².
V 1NP se nacházejí 3 obytné pokoje a veranda, která umožňuje druhý vstup do 1NP. Zde je vše v původním stavu a jedná se o dřevostavbu. Podlahová plocha 35 m².
Střešní konstrukce vazníková, krytina asfaltové pásy.
Vytápění bude zajištěno krbovou vložkou. Elektřina 230 V, voda přivedena ze studánky.
Výměra pozemku 397 m².
Uvedené plochy jsou pouze orientační.
Chata je celkově v původním stavu, částečně v rekonstrukci.
S financováním Vám rádi pomohou naší finanční specialisté.
Prodávající si vyhrazuje právo v případě více zájemců prodat nejvýhodnější nabídce.
Pro bližší informace nebo termín sjednání schůzky mne prosím kontaktujte.
Kontakt
Ladislav Urbančík
Další podobné inzeráty:
-
Chata v obci Nýdek, polosamota, pozemek 4838 m2
Pokud hledáte výjimečnou lokalitu na polosamotě u lesa, s krásným výhledem, klidem, tak by Vás mohla zaujmout tato nabídka……
6 490 000,- Kč Nýdek (739 95), okres Frýdek-Místek -
Vyměním byt za chatu
Vyměním byt v Havířově za celoročně obyvatelnou chatu nebo malý domek …
Frýdek-Místek (738 01) -
Koupím chalupu, Beskydy
Koupím chatu- chalupu, v Beskydech. Nejsem R. K. Tel- 775221281…
Třinec (739 61), okres Frýdek-Místek -
Koupím chalupu- roubenku, srub.
Koupím chalupu- roubenku, srub. Beskydy…
okres Frýdek-Místek -
Prodám chatu na Morávce
Prodám chatu na Morávce v klidném prostředí Velkého Lipového. …
950 000,- Kč Morávka (739 04), okres Frýdek-Místek -
Prodej, exkluzivní chata s č. ev., Čeladná
Kód zakázky: 157, Je mi opravdu ctí vám nabídnout ke koupi nově zrekonstruovanou rekreační nemovitost, která předčí veškerá……
6 650 000,- Kč Čeladná, okres Frýdek-Místek
- Prohlédněte si také inzerci nemovitostí v nejbližším okolí: chaty a chalupy Opava, chaty a chalupy Ostrava-město, chaty a chalupy Havířov, chaty a chalupy Karviná.
- Podívejte se na další nabídky chat ve Frýdku-Místku: prodej chat ve Frýdku-Místku, pronájem chat ve Frýdku-Místku
- Další podobné inzeráty najdete na stránce chaty a chalupy ve Frýdku-Místku.
- Nenašli jste, co jste hledali? Prohlédněte si další inzeráty v rubrice chaty a chalupy nebo v sekci Inzerce nemovitostí.













