- Druh nabídky: prodej pozemků v Olomouci
- Typ pozemku: Pozemky pro bydlení
- Plocha pozemku: 1011 m2
- Umístění objektu: centrum obce
- Odpad: Kanalizace
- Doprava: MHD
- Lokalita:
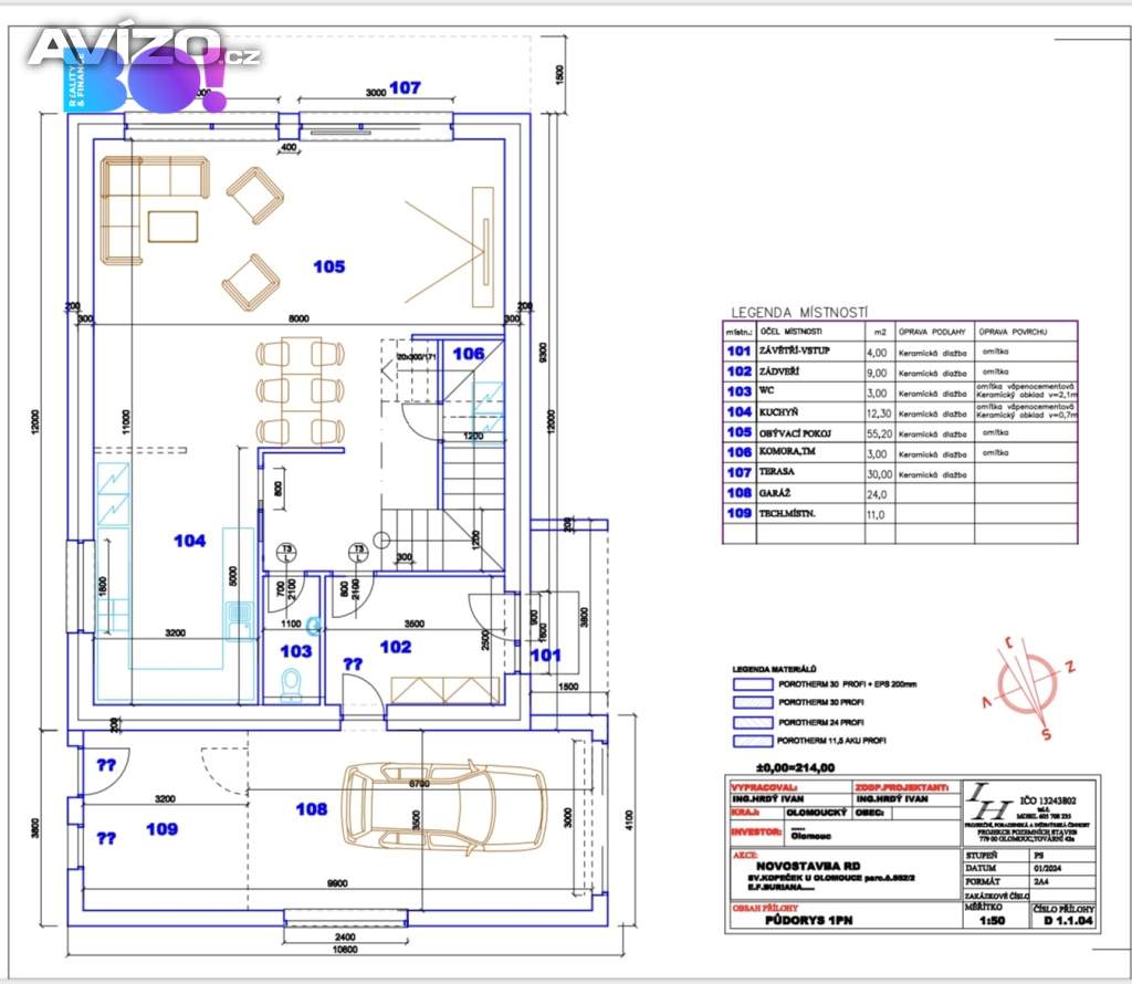
Pozemek je určen k bydlení a disponuje veškerými potřebnými inženýrskými sítěmi. K dispozici je stavební povolení, což urychluje realizaci vysněného bydlení. V rámci projektu je navržen dům s dispozicí 4+kk a garáží, který poskytuje užitnou plochu 180 m² a zastavěnou plochu 137 m², což zajišťuje komfortní a prostorné bydlení. Tento dům bude ideálním místem pro život, kde se elegance snoubí s praktickými funkcemi.
V přízemí najdeme - vstup o rozloze 4 m², zádveří o velikosti 9 m², WC 3 m², kuchyň 12,3 m², prostorný obývací pokoj o rozloze 55,2 m², komoru 3 m², terasu o velikosti 30 m², garáž 24 m² a technickou místnost 11 m².
V prvním patře je hala o dispozici 16,2 m², koupelna 8,25 m², WC 3 m², pokoj 1 o velikosti 21 m², pokoj 2 o velikosti 21 m², ložnice o rozloze 20 m² a šatna 5 m².
Vytápění je navrženo podlahovým systémem, vytápění - tepelné čerpadlo + navrženo alternativní topení krbem. Energetická náročnost budovy je dle projektu zařazena do třídy B.
Svatý Kopeček je vyhledávanou lokalitou, která nabízí klidné a příjemné prostředí na dosah městského ruchu. V okolí se nachází veškerá občanská vybavenost, školky, školy, obchody a další služby, nezbytné pro spokojené rodinné bydlení. Rychlé a efektivní spojení zajišťuje MHD, což usnadňuje dopravu do Olomouce.
Jde o jedinečnou příležitost, kde můžete zrealizovat své sny o moderním a komfortním bydlení ve vyhledávané lokalitě.
V případě zájmu o prohlídku nás neváhejte kontaktovat. S financováním Vám rádi pomůžeme.
Kontakt
Bc. Tereza Krajíčková, MBA
Další podobné inzeráty:
-
Prodej zahrady, Olomouc- Svatý Kopeček
Kód zakázky: 7614, Nabízíme exkluzivně k prodeji zahradu v žádané lokalitě Svatý Kopeček, o celkové rozloze 1243 m². Tato……
1 040 000,- Kč Olomouc, Svatý Kopeček -
Prodej stavebního pozemku, Olomouc - Svatý Kopeček
Kód zakázky: 6404, Exkluzivně nabízíme k prodeji rozsáhlý stavební pozemek se schváleným stavebním projektem o celkové rozloze 2……
6 760 000,- Kč Olomouc, Svatý Kopeček -
Prodej stavebního pozemku, 1 313 m², Dlouhá Loučka, okres Ol...
Kód zakázky: 7478, K prodeji nabízíme krásný pozemek o velikosti 1 313 m², vhodný pro výstavbu rodinného domu. Parcela se……
1 575 000,- Kč Dlouhá Loučka, okres Olomouc -
Prodej zahrady Samotišky
Kód zakázky: 6980, Exkluzivně nabízíme k prodeji zahradu, vedenou jako ovocný sad, v malebné lokalitě obce Samotišky, okres……
2 370 000,- Kč Samotišky, okres Olomouc -
Prodej pole, 5689 m², Daskabát
Kód zakázky: 6497, Nabízíme k prodeji soubor pozemků vedených jako orná půda o celkové výměře 5689 m² v katastrálním území……
317 312,- Kč Daskabát, okres Olomouc -
Prodej pole, 4632 m², Náměšť na Hané
Kód zakázky: 6408, Nabízíme k prodeji pozemek vedený jako orná půda o celkové výměře 4632 m² v katastrálním území Náměšť na……
82,- Kč/m² Náměšť na Hané, okres Olomouc
- Prohlédněte si také inzerci nemovitostí v nejbližším okolí: pozemky Hranice, pozemky Prostějov, pozemky Šumperk, pozemky Jeseník.
- Podívejte se na další nabídky stavebních pozemků pro bydlení v Olomouci: prodej stavebních pozemků pro bydlení v Olomouci, pronájem stavebních pozemků pro bydlení v Olomouci
- Další podobné inzeráty najdete na stránce pozemky v Olomouci.
- Nenašli jste, co jste hledali? Prohlédněte si další inzeráty v rubrice pozemky, zahrady nebo v sekci Inzerce nemovitostí nebo inzeráty ze stejné lokality na stránce inzerce Olomouc












