- Typ domu: rodinný dům
- Druh nabídky: prodej rodinných domů v Příbrami
- Užitná plocha: 440 m2
- Plocha pozemku: 500 m2
- Energetická náročnost budovy: G - Mimořádně nehospodárná
- Stáří objektu: 1986
- Druh objektu: cihlová
- Umístění objektu: klidná část obce
- Plocha sklepu (m2): 110
- Počet míst k parkování: 2
- Počet podlaží objektu: 2
- Počet podlaží pod zemí: 1
- Plocha zahrady (m2): 500
- Podlahová plocha (m2): 220
- Voda: Voda - dálkový vodovod
- Elektřina: Elektro - 230 V
- Doprava: MHD, autobus, silnice
- Komunikace: asfaltová
- Topení: Ústřední - tuhá paliva
- Odpad: Kanalizace
- Zastavěná plocha: 120
- Lokalita:
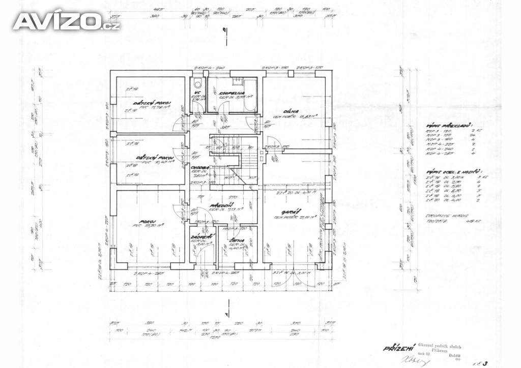
Dům je zcela podsklepený a disponuje garáží, což zajišťuje pohodlné parkování a dostatek úložného prostoru. V přízemí se nachází čtyři prostorné pokoje, chodba, koupelna s vanou a samostatná toaleta.
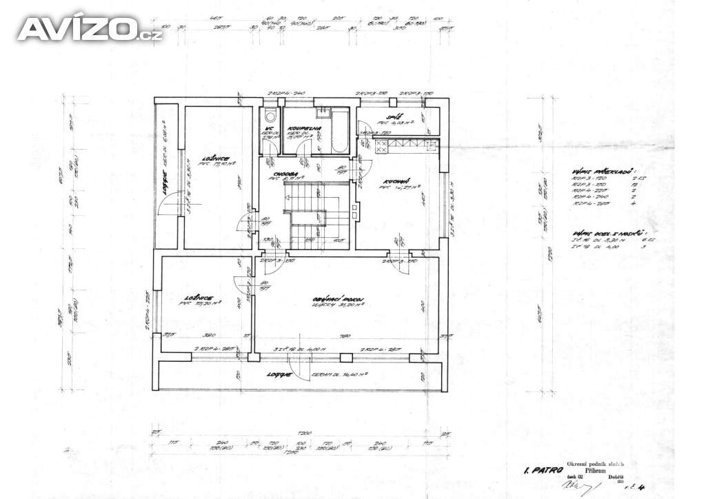
V prvním patře najdete prostorný obývací pokoj se vstupem na balkon, kuchyňskou linku s jídelnou a ložnici.
Ve druhém patře je možnost vybudovat další obytnou část podle vlastních představ, což vám umožní přizpůsobit dům svým potřebám. Momentálně slouží jako půda.
Tento dům je ideální pro rodiny hledající klidné a komfortní bydlení v blízkosti přírody, přičemž nabízí dostatek prostoru pro kreativní úpravy a rozšíření.
V blízkosti se nachází veškerá občanská vybavenost: MŠ a ZŠ, restaurace, obchody s potravinami, pošta, městský úřad, zdravotní středisko.
Doprava: V blízkosti nemovitosti se nachází autobusová zastávka (Nový Knín - Dobříš pouhých, 40 minut autobusem a 13 minut autem) a (Nový Knín - Praha, 55 minut autobusem a 30 minut autem)
Kontakt
Trpáková Kateřina
Další podobné inzeráty:
-
Rodinný dům 4+kk, novostavba - bungalov, ul. Přísnotická, V...
Kód zakázky: 231224, Představte si domov, do kterého jen vejdete, zavoní novotou a hned víte, že jste na správném místě. Ve……
13 300 000,- Kč Přísnotická, Vranovice, okres Příbram -
Prodej RD 2+1, na pozemku 226 m2, Březnice, okr. Příbram
Kód zakázky: N2416174, Nabízíme k prodeji prostorný dům 2+1 na pozemku o ploše 226 m2 v Březnici, okr. Příbram. V I. NP se……
2 900 000,- Kč Horní Valy, Březnice, okres Příbram -
Prodej RD 7+1, pozemek 2.370 m2, Zalužany, okr. Příbram
Kód zakázky: N2315322, Nabízíme k prodeji rodinný dům na pozemku o CP 2. 370 m2 v klidné obci Zalužany, okr. Příbram. V I……
7 850 000,- Kč Zalužany, okres Příbram -
Prodej řadového rodinného domu 3+1 v obci Dolní Bousov
Kód zakázky: A9012, Nabízíme k prodeji rodinný dům 3+1 s pozemkem 323 m2 v obci Dolní Bousov, okres Mladá Boleslav. Dům je……
4 950 000,- Kč Spálená, Dolní Bousov, okres Mladá Boleslav -
Prodej rodinného domu 160 m², Libčice nad Vltavou
Kód zakázky: 76880, Rodinný dům k rekonstrukci v klidné části Libčic nad Vltavou, ul. TyršovaObjevte bydlení kousek od……
5 500 000,- Kč Tyršova, Libčice nad Vltavou, okres Praha-západ -
Dům po rekonstrukci s obrovskou zahradou a příslušenstvím
Kód zakázky: 232088, Exkluzivně nabízím RD 3+1 85m2 s možností využití pochozí půdy 45m2 a obrovské zahrady 400m2 + sklep 10m2……
8 990 000,- Kč Bří. Nováků, Jeneč, okres Praha-západ
- Prohlédněte si také inzerci nemovitostí v nejbližším okolí: rodinné domy Brandýs nad Labem-Stará Boleslav, rodinné domy Kutná Hora, rodinné domy Benešov, rodinné domy Poděbrady.
- Podívejte se na další nabídky rodinných domů v Příbrami: prodej rodinných domů v Příbrami, pronájem rodinných domů v Příbrami
- Další podobné inzeráty najdete na stránce rodinné domy ve Středočeském kraji.
- Nenašli jste, co jste hledali? Prohlédněte si další inzeráty v rubrice rodinné domy nebo v sekci Inzerce nemovitostí.





























