- Lokalita: Na Výsluní, Mostecké Předměstí, Bílina, okres Teplice
- Typ domu: rodinný dům
- Druh nabídky: prodej rodinných domů v Bílině
- Stav objektu: novostavba
- Užitná plocha: 175 m2
- Plocha pozemku: 677 m2
- Energetická náročnost budovy: C - Úsporná
- Druh objektu: montovaná
- Zastavěná plocha: 175
- Počet podlaží objektu: 1
- Odpad: Kanalizace
- Umístění objektu: klidná část obce
- Doprava: MHD, vlak, autobus, silnice
- Voda: Voda - dálkový vodovod
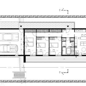
Poslední dům z unikátního projektu v Bílině - Na Výsluní. Představujeme Vám rodinný dům o užitné ploše 175 m2, z čehož čistá obytná plocha činí 97 m2, garáž pro dva automobily o velikosti 36.8 m2 a terasa 41.3 m2. Poslední dům z tohoto projektu je ve fázi výstavby a termín dokončení je stanoven první kvartál roku 2026.
Jedná se o rodinný dům obdélníkového tvaru. Objekt je přízemní nepodsklepený a má plochou tzv. zelenou střechu. Sestává se ze dvou částí, a to z garáže, která je založena na základových pasech a z obytné části, která je založena na ocelovém rámu. Ocelový rám podpírá obytnou část a plní funkci základové desky. Tento rám je podepřen čtyřmi ocelovými vzpěrami a spolu s obytnou částí je nad terénem, který se od styku garáže a obytné části svažuje. Na podélné severní straně objektu je vstup do garáže a do obytné části, resp. do spojovací chodby. Před hlavním vstupem je vytvořeno zastřešené závětří. Obytné místnosti jsou orientovány na jih a západ. Z obytných místností jsou zřízeny vstupy prosklenými dveřmi na dřevěnou terasu, která je souběžná s jižní stranou objektu (jižní terasa). U východní strany objektu je také terasa (východní terasa), která je přístupná z obývací kuchyně. Terasa tvoří písmeno L. Další terasa je zřízena na severní straně objektu a je prodloužením chodníku podél severní strany garáže a zajišťuje přístup k hlavnímu vchodu do objektu. Jak je již výše zmíněno, objekt je zastřešen plochou tzv. zelenou střechou, kterou uzavírá atika. Střecha zastřešuje jak garáž, tak i obytnou část a terasu.
Nepromarněte poslední šanci vlastnit tento architektonicky velmi zajímavý dům a domluvte si prohlídku.
Cena je za dokončený rodinný dům včetně kuchyňské linky bez spotřebičů.
Kontakt
Eva Hrabáková
Další podobné inzeráty:
-
Pronájem RD se zahradou, Stará Střelná, Košťany
Kód zakázky: 232574, Nabízíme k pronájmu rodinný dům se zahradou, který se nachází v klidné části města Košťany - Střelná……
25 000,- Kč/měsíc Stará Střelná, Košťany, Střelná, okres Teplice -
Prodej rodinného domu 85 m2 pozemek 535 m2 Košťany.
Kód zakázky: 232590, PRODEJ DOMU V KOŠŤANECH U TEPLIC - ANEB: "DOMEČEK, KTERÝ SI MŮŽETE NADĚLIT POD STROMEČEK! Hledáte domov……
3 600 000,- Kč SAB, Košťany, okres Teplice -
Prodej domu 90 m2, pozemek 768m2.
Kód zakázky: 232038, Kouzelný domek kousek od jezera Barbora - ideální pro bydlení i podnikání! Hledáte místo, kde budete mít……
4 900 000,- Kč Nové sady, Duchcov, okres Teplice -
Prodej rodinného domu 350 m2, pozemek 1 055 m2
Kód zakázky: 230914, Tento mimořádně prostorný dům uspokojí i ty nejnáročnější zájemce. Nabízí komfort, přirozené světlo a……
15 490 000,- Kč Severní, Teplice, Trnovany -
Prodej, rodinný dům, bungalov 4+kk, Domaslavice, Háj u Duchc...
Kód zakázky: 231503, Upozornění: Tato nabídka je rezervována konkrétním zájemcem a v rezervační lhůtě není k dispozici! V……
8 500 000,- Kč Polní, Domaslavice, Háj u Duchcova, okres Teplice -
Prodej vícegeneračního domu 350 m2, pozemek 840 m2, Pražská,...
Kód zakázky: 230835, Hledáte místo, které nabídne dostatek prostoru pro vaši rodinu, podnikání nebo zajímavou investici do……
5 650 000,- Kč Pražská, Žalany, okres Teplice
- Prohlédněte si také inzerci nemovitostí v nejbližším okolí: rodinné domy Chomutov, rodinné domy Litoměřice, rodinné domy Kadaň, rodinné domy Děčín.
- Podívejte se na další nabídky rodinných domů v Bílině: prodej rodinných domů v Bílině, pronájem rodinných domů v Bílině
- Další podobné inzeráty najdete na stránce rodinné domy v Teplicích.
- Nenašli jste, co jste hledali? Prohlédněte si další inzeráty v rubrice rodinné domy nebo v sekci Inzerce nemovitostí nebo inzeráty ze stejné lokality na stránce inzerce Bílina























