- Typ domu: rodinný dům
- Druh nabídky: prodej rodinných domů Praha-východ
- Stav objektu: velmi dobrý
- Užitná plocha: 377 m2
- Plocha pozemku: 1704 m2
- Energetická náročnost budovy: G - Mimořádně nehospodárná
- Plocha teras: 139
- Druh objektu: cihlová
- Zastavěná plocha: 278
- Elektřina: Elektro - 230 V
- Počet podlaží objektu: 3
- Plocha zahrady (m2): 1139
- Odpad: Kanalizace
- Topení: Lokální - plynové
- Celková plocha nebytových prostor (m2): 169
- Umístění objektu: klidná část obce
- Počet míst k parkování: 4
- Doprava: MHD, dálnice, autobus, silnice
- Počet podlaží pod zemí: 1
- Voda: Voda - zdroj pro celý objekt
- Lokalita:
Dům o užitné ploše 377 m² stojí na rozlehlém pozemku o velikosti 1704 m², který zahrnuje krásně udržovanou zahradu a prostornou terasu o výměře 139 m².
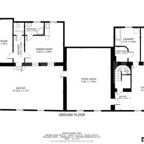
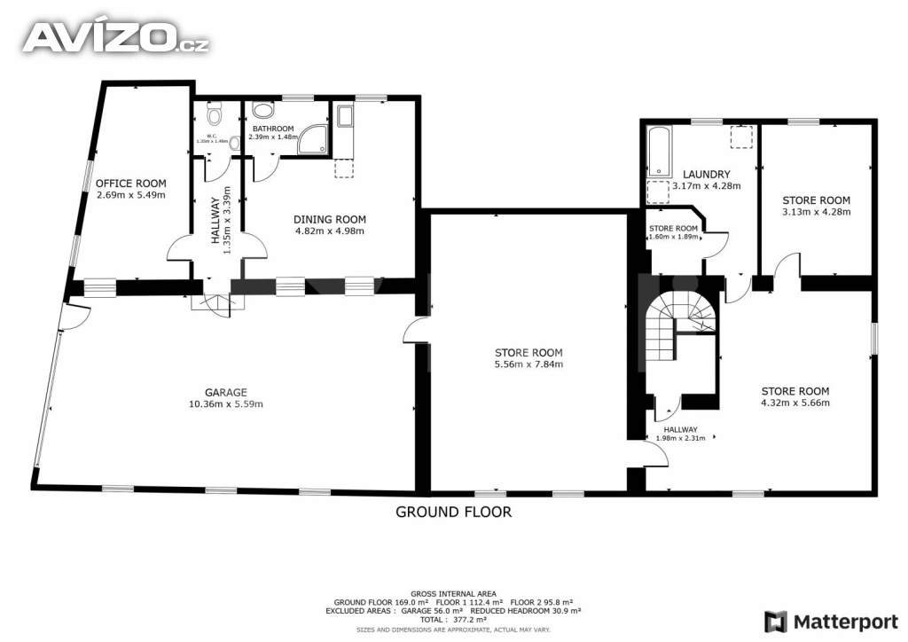
Promyšlené dispozice domu umožňují maximální využití prostoru. V 1. podzemním podlaží o rozloze 169 m² se nachází garáž s dostatečnou kapacitou pro více vozidel, praktická dílna, kancelář a prádelna. Tento prostor nabízí nekonečné možnosti využití - můžete zde vybudovat soukromé wellness, posilovnu nebo třeba kreativní ateliér.
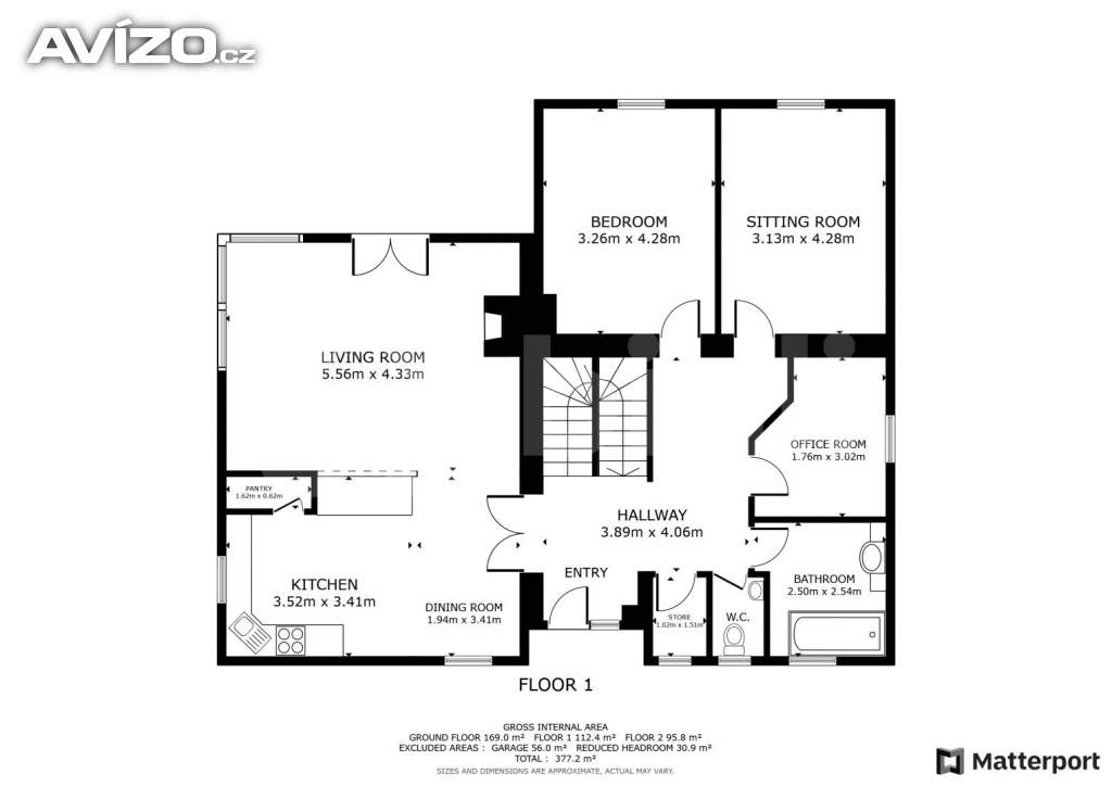
V 1. nadzemním podlaží se rozkládá hlavní obytná část s dispozicí 4+KK, která je díky velkým oknům nádherně prosvětlená a nabízí výhled na udržovanou přední i zadní zahradu. Z obývacího pokoje je přímý vstup na rozlehlou terasu, která poskytuje ideální místo pro odpočinek či rodinná setkání.
2. nadzemní podlaží o velikosti 31 m² slouží jako podkrovní prostor, který lze přizpůsobit individuálním potřebám.
Dům je vybaven kombinací podlahového vytápění a radiátorů, které zajišťuje plynový kotel, a pro ještě větší komfort jsou zde krbová kamna s tepelnými rozvody do obytných místností.
Lokalita Klíčan nabízí veškerou občanskou vybavenost v dojezdové vzdálenosti pouhých 5 minut autem. Pro ty, kteří upřednostňují hromadnou dopravu, je autobusová zastávka jen 2 minuty chůze od domu a přímé spojení vás do centra Prahy dopraví do 30 minut. Potraviny a další služby jsou k dispozici v bezprostřední blízkosti.
Tento rodinný dům je skvělou volbou nejen pro klidné rodinné bydlení, ale také pro podnikatele, kteří hledají prostor pro svou firmu či provozovnu. Nezmeškejte tuto jedinečnou příležitost a kontaktujte nás pro více informací a prohlídku.
Kontakt
Marek Raatz
Další podobné inzeráty:
-
Pronájem rodinného domu 4+kk/G 132 m2, pozemek 495 m2, obec ...
Kód zakázky: N2516871, Nabízíme na pronájem rodinný dům (novostavba r. 2025) o velikosti 132 m2, dispozice 4+kk + garáž……
54 993,- Kč/měsíc Herink, okres Praha-východ -
Prodej rodinného domu 71 m², Polerady
Kód zakázky: 78946, Hledáte bydlení, které kombinuje prostor rodinného domu, pohodlí bytu a atmosféru malého wellness? V……
9 190 000,- Kč Polerady, okres Praha-východ -
Moderní a nízkoenergetická RD 4+kk, Brandýs nad Labem
Kód zakázky: 232347, Hledáte moderní rodinný dům v klidné lokalitě, s výbornou dostupností Prahy a kompletní občanskou……
10 990 000,- Kč Za humny, Brandýs nad Labem-Stará Boleslav, Brandýs nad Labem, okres Praha-východ -
vila 5kk, 170m2, s maximálním soukromím a zároveň v centru L...
Kód zakázky: 232472, Představujeme Vám jedinečnou příležitost ke koupi vily 5kk s užitnou plochou 170 m² , která kombinuje……
20 990 000,- Kč Hovorčovická, Líbeznice, okres Praha-východ -
Prodej rodinného domu 175 m2, zahrada 523 m2, Brandýs nad La...
Kód zakázky: 232372, Ve výhradním zastoupení majitele nabízíme rodinný dům o dispozici 4+1 s užitnou plochou 175 m2 na pozemku……
13 990 000,- Kč Královická, Brandýs nad Labem-Stará Boleslav, Brandýs nad Labem, okres Praha-východ -
Prodej rodinného domu 89 m², Květnice
Kód zakázky: 78441, Rodinný dům 4+kk, 89 m² se zahradou 157 m² – Květnice, Balzamínova 597Nabízíme k prodeji moderní rodinný……
9 190 000,- Kč Balzamínová, Květnice, okres Praha-východ
- Prohlédněte si také inzerci nemovitostí v nejbližším okolí: rodinné domy Příbram, rodinné domy Mělník, rodinné domy Neratovice, rodinné domy Mladá Boleslav.
- Podívejte se na další nabídky rodinných domů Praha-východ: prodej rodinných domů Praha-východ, pronájem rodinných domů Praha-východ
- Další podobné inzeráty najdete na stránce rodinné domy Praha-východ.
- Nenašli jste, co jste hledali? Prohlédněte si další inzeráty v rubrice rodinné domy nebo v sekci Inzerce nemovitostí.























