- Typ domu: rodinný dům
- Druh nabídky: prodej rodinných domů v Českých Budějovicích
- Stav objektu: dobrý
- Užitná plocha: 171 m2
- Plocha pozemku: 351 m2
- Energetická náročnost budovy: G - Mimořádně nehospodárná
- Druh objektu: cihlová
- Zastavěná plocha: 150
- Elektřina: Elektro - 230 V
- Plocha zahrady (m2): 171
- Odpad: Kanalizace
- Topení: Lokální - plynové, Lokální - tuhá paliva
- Umístění objektu: klidná část obce
- K nastěhování: 10.04.2025
- Doprava: autobus, silnice
- Voda: Voda - dálkový vodovod
- Lokalita:
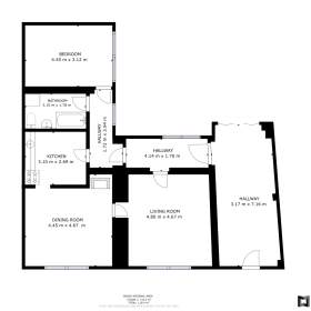
Nabízíme ke koupi rodinný dům o dispozici 3+1 v klidné části obce Dolní Bukovsko, na adrese V Hliníku 171. Dům se nachází na pozemku o celkové výměře 351 m2, z toho zastavěná plocha činí 170 m2 a obytná část nabízí přibližně 135 m2 .
Při vstupu do domu projdete průjezdem, který umožňuje pohodlný vjezd na dvůr a parkování. Z centrální chodby je přístup do pokoje, z nějž se dále vstupuje do prostorného obývacího pokoje a navazující kuchyně. Koupelna s vanou a toaletou je přístupná rovněž z chodby. Z chodby se vchází do samostatné ložnice.
Na dvoře se nachází kůlna, ideální pro úložné účely nebo drobné hobby. Dům je napojen na obecní vodovod i kanalizaci, k dispozici je rovněž plynová přípojka. Vytápění zajišťují plynová kamna WAF v každém pokoji a krbová kamna v obýváku, ohřev vody zajišťuje elektrický bojler. Okna do ulice jsou plastová, do dvora dřevěná.
Nemovitost je vhodná jak k okamžitému bydlení, tak i k případné rekonstrukci dle vlastních představ. Výhodná poloha v obci s občanskou vybaveností a dobrým dopravním spojením do Českých Budějovic nebo Tábora dělá z této nabídky zajímavou příležitost.
Nezávazně vám připravíme nabídku financování přes naše hypoteční centrum. Pouze u nás zajistíme financování až na 35 let bez ohledu na věk, prokazování příjmů či nutnost předkládat daňové přiznání. Zeptejte se nás a bydlete chytře!
Pro více informací nebo domluvení prohlídky mě neváhejte kontaktovat.
Kontakt
Vítězslav Novák
Další podobné inzeráty:
-
Prodej rodinného domu 4+1, 527 m2 Byňov u Nových Hradů
Kód zakázky: 232907, Prodej rodinného domu 4+1, 527 m2, Byňov u Nových HradůNabízíme k prodeji velmi pěkný rodinný dům o……
4 600 000,- Kč Nové Hrady, Byňov, okres České Budějovice -
Rodinný dům - dvougenerační, Hůry u Č. Budějovic
Kód zakázky: 232388, Dvougenerační vila v Hůrách u Č. Budějovic NA PRODEJ! Samostatné byty o dispozici 3+1 a 4+kk, v suterénu……
9 795 000,- Kč Horní, Hůry, okres České Budějovice -
Prodej rodinného domu / vily, České Budějovice
Kód zakázky: 7296, Exkluzivně Vám nabízíme ke koupi rodinný dům v klidné části Českých Budějovic. Rodinný dům se nachází v……
24 500 000,- Kč Preslova, České Budějovice, České Budějovice 7 -
Prodej RD 6+1, 175 m2, pozemek 1 762 m2, Srubec
Kód zakázky: 231338, Prodej rodinného domu v atraktivní lokalitě Srubec - "Na Švajce" 205Nabízíme rodinný dům na výjimečně……
9 500 000,- Kč Na Švajce, Srubec, okres České Budějovice -
Prodej rodinného domu 5+kk, 282 m2 , pozemek 1534 m2, Srubec...
Kód zakázky: 232569, Prodej rodinného domu 5+kk, 282 m2, Srubec u Českých BudějovicNabízíme k prodeji nadstandardní rodinný……
18 700 000,- Kč Ke Hřišti, Srubec, okres České Budějovice -
Na prodeji prostorný rodinný dům 6+1 v Českých Budějovicích
Kód zakázky: 230957, Na prodej rodinný dům o dispozici 6+1 a celkové ploše 287 m2, který poskytuje dostatek prostoru a pohodlí……
Zvonková, České Budějovice, České Budějovice 7
- Prohlédněte si také inzerci nemovitostí v nejbližším okolí: rodinné domy Český Krumlov, rodinné domy Písek, rodinné domy Tábor, rodinné domy Strakonice.
- Podívejte se na další nabídky rodinných domů v Českých Budějovicích: prodej rodinných domů v Českých Budějovicích, pronájem rodinných domů v Českých Budějovicích
- Další podobné inzeráty najdete na stránce rodinné domy v Českých Budějovicích.
- Nenašli jste, co jste hledali? Prohlédněte si další inzeráty v rubrice rodinné domy nebo v sekci Inzerce nemovitostí.

























