- Lokalita: Branná, okres Šumperk
- Druh nabídky: prodej chat a chalup v Šumperku
- Typ nemovitosti: chalupa
- Stav objektu: velmi dobrý
- Užitná plocha: 513 m2
- Druh objektu: smíšená
- Vlastní pozemek (m2): 1681
- Rok kolaudace: 2009
- Zastavěná plocha: 192
- Počet podlaží objektu: 4
- Odpad: ČOV pro celý objekt
- Topení: Ústřední - elektrické, Lokální - tuhá paliva
- Poloha objektu: samostatný
- Umístění objektu: samota
- K nastěhování: 31.07.2025
- Doprava: vlak, silnice
- Voda: Voda - zdroj pro celý objekt
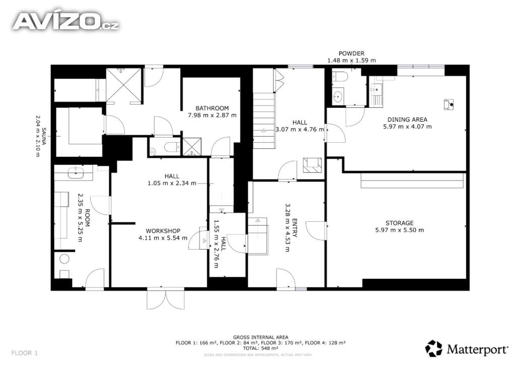
Celková užitná plocha pensionu činí 513 m2 s pozemkem 1681m2. V současnosti jsou k dispozici tři plně vybavené apartmány o dispozici 4+kk s kapacitou 18 lůžek, což novému majiteli umožňuje okamžitě apartmány nabízet ke krátkodobým pronájmům. Další dva apartmány lze vybudovat v podkroví a jeden v přízemí, což by novému majiteli značně rozšířilo investiční možnosti. Každý apartmán má vlastní kachlová kamna, další jsou ve společenské místnosti a chodbě. Alternativou pro vytápění je elektrický kotel, ohřev vody zajišťuje bojler, pitná voda je ze studny. Součástí vybavení je potom wellnes zóna obsahující saunu a ochlazovací bazének.
V bezprostřední blízkosti najdete lyžařský areál s vlekem, sedačkovou lanovkou a možností nočního lyžování. Další aktivity nabízí lanové centrum, horské minikáry v Ramzové či bobová dráha v Petříkově. Obec Branná je díky své poloze atraktivním cílem turistů po celý rok.
Pension v Branné nabízí široké možnosti využití - od výnosné investice s ubytovací kapacitou až po komfortní rodinné rekreační sídlo. Díky strategické poloze a kvalitnímu zázemí jde o jedinečnou příležitost v srdci Jeseníků.
Pro více informací či sjednání prohlídky jsem Vám k dispozici a rádi Vám ve spolupráci s hypotečním specialistou zařídíme výhodné financování na míru. PENB. G
Kontakt
František Handl
Další podobné inzeráty:
-
Prodej chalupy 3+1, Žárová u Nových Losin, 71 m², zahrada 52...
Kód zakázky: 7575, Útulná chalupa v srdci Jeseníků – Žárová u Nových LosinNabízíme k prodeji menší, pečlivě udržovanou chalupu……
4 899 000,- Kč Velké Losiny, Žárová, okres Šumperk -
Prodej chalupy 181 m², pozemek 1 559 m², Malá Morava
Kód zakázky: 6869, BO! Vám nabízí novou poloroubenou chalupu v obci Malá Morava. V přízemí se nachází vstupní chodba, obývací……
10 500 000,- Kč Malá Morava, okres Šumperk -
Prodej, chalupa, 280 m2
Kód zakázky: 133555, Tento moderní penzion je ideálním místem pro relaxaci a odpočinek, ať už se rozhodnete pro romantický……
12 490 000,- Kč Komenského, Velké Losiny, okres Šumperk -
Prodej chalupa, 100 m2 - Staré Město - Stříbrnice
Kód zakázky: 71133, Stylová roubenka s moderním komfortem přímo pod sjezdovkou Kraličák – na prodejV krásném a klidném prostředí……
10 490 000,- Kč Stříbrnice, Staré Město, okres Šumperk -
Prodej chaty, Dolní Bušínov, Zábřeh
Kód zakázky: 1919, BO! Vám nabízí prodej rekreační chaty v atraktivní a žádané lokalitě obce Dolní Bušínov. Rekreační objekt má……
Zábřeh, Dolní Bušínov, okres Šumperk -
Prodej chaty 102m2, pozemek 878m2, Hrubá Voda
Kód zakázky: 232359, Exkluzivně Vám nabízím unikátní chatu v obci Hrubá Voda - ideální útočiště pro každého, kdo hledá klid……
4 800 000,- Kč Hlubočky, Hrubá Voda, okres Olomouc
- Prohlédněte si také inzerci nemovitostí v nejbližším okolí: chaty a chalupy Přerov, chaty a chalupy Zábřeh, chaty a chalupy Jeseník, chaty a chalupy Olomouc.
- Podívejte se na další nabídky chalup v Šumperku: prodej chalup v Šumperku, pronájem chalup v Šumperku
- Další podobné inzeráty najdete na stránce chaty a chalupy v Olomouckém kraji.
- Nenašli jste, co jste hledali? Prohlédněte si další inzeráty v rubrice chaty a chalupy nebo v sekci Inzerce nemovitostí.




























