- Druh nabídky: prodej bytů v Chomutově
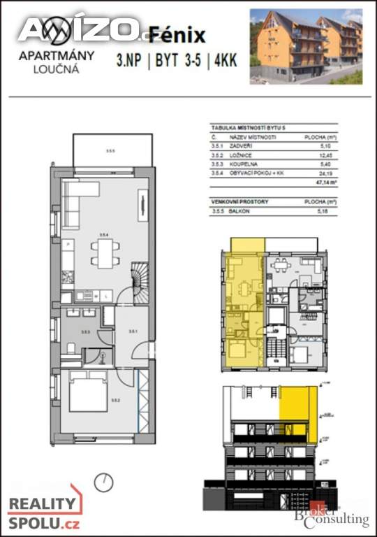
- Velikost bytu: 4+kk
- Vlastnictví: osobní
- Typ budovy: cihlový
- Stav objektu: novostavba
- Plocha: 79 m2
- Podlaží: 3
- Energetická náročnost budovy: B - Velmi úsporná
- Poloha objektu: samostatný
- Počet podlaží objektu: 4
- Doprava: silnice, autobus
- Elektřina: Elektro - 230 V
- Voda: Voda - dálkový vodovod
- Odpad: Kanalizace
- Počet míst k parkování: 1
- Lokalita:
Jedná se o mezonetové apartmány s velikosti 4+kk ve 3-4. patře apartmánového domu. V ceně bytu je využívání prostorné lyžárny/kolárny s možností umístění uzamykatelných skříní. Pokud hledáte druhé bydlení blíže přírodě, je tato exkluzivní nabídka přímo pro Vás nabízíme k prodeji dokončovanou novostavbu horského apartmánu krásným výhledem do okolní krajiny.
Apartmán se nachází ve vyhledávané lokalitě Krušných hor v Loučné pod Klínovcem, v blízkosti dvou moderních lyžařských středisek (Skiareál Klínovec a Skiareál Fichtelberg) a německého lázeňského města Oberwiesenthal s kvalitní občanskou vybaveností. Poloha 1000 - 1244 m n. m. garantuje v zimě dostatek sněhu, v létě naopak velmi příjemné klima. Přímo v místě je bezpočet možností k turistice, cyklovýletům, sjezdům na horských kolech (Trail Park Klínovec), jízdě na běžkách, či houbaření.
Apartmán je součástí nadčasového viladomu o sedmi bytových jednotkách a nachází se v klidné části obce. Dokončení stavby domu je plánováno na 3. čtvrtletí 2025.
U apartmánu určitě oceníte promyšlené dispozice, příjemnou orientaci na tři světové strany a realizaci v nadstandardním provedení. Tepelnou pohodu Vám zajistí podlahové teplovodní vytápění a tepelná čerpadla. Vysoký komfort bydlení doplní výtah a vlastní parkovací stání za domem. V přízemí domu bude možné využívat kolárnu s lyžárnou pro uskladnění letního či zimního sportovního vybavení.
Váš apartmán Vám může sloužit nejen pro vlastní rekreaci, ale i jako výhodná investice. Jeho koupí si můžete zajistit zajímavý pasivní příjem, když se rozhodnete apartmán pronajímat v době, kdy ho sami nebudete využívat. Pro tento případ Vám můžeme zajistit komplexní servis v oblasti krátkodobého pronájmu.
Všechny jednotky budou v rámci projektu kolaudovány jako bytové, proto bude možné jejich koupi financovat prostřednictvím hypotečního úvěru, a to až do výše 80%-90% hodnoty nemovitosti. Pokud Vás nabídka zaujala neváhejte nás kontaktovat. S financováním Vám rádi pomůžeme.
Kontakt
Broker Consulting, a.s.
Další podobné inzeráty:
-
Pronájem bytu 2+1, 52 m2, Jirkov, ul. K. H. Máchy
Kód zakázky: 233029, Tohle není byt z časopisu o luxusním bydlení, ale má něco, co mnoho jiných nemá - praktičnost a pohodu……
12 000,- Kč/měsíc K. H. Máchy, Jirkov, okres Chomutov -
Pronájem bytu 1+1 36 m², Chomutov
Kód zakázky: 80417, Hledáte příjemné a klidné bydlení ? Právě pro Vás nabízíme k podnájmu útulný družstevní byt o dispozici……
8 200,- Kč/měsíc Kyjická, Chomutov -
Prodej bytu 1+kk 29 m², Chomutov
Kód zakázky: 80293, Nabízíme k prodeji byt v osobním vlastnictví 1+KK s velkou lodžií v ul. Kundratická v Chomutově. Jedná se o……
1 599 000,- Kč Kundratická, Chomutov -
Prodej bytu 3+1, 67 m2, DV, Klášterec nad Ohří, ul. Lípová
Kód zakázky: 232802, Lokalita, kterou nájemníci milují. Jako investor jistě víte, že nejvíc rozhoduje adresa. Tady získáte……
2 721 000,- Kč Lípová, Klášterec nad Ohří, okres Chomutov -
Pronájem bytu 2+1 51 m², Chomutov
Kód zakázky: 79612, Nově nabízíme k podnájmu družstevní byt o dispozici 2+1 a výměře 51. 6 m², který se nachází ve 2……
8 000,- Kč/měsíc Zahradní, Chomutov -
Pronájem bytu 1+1 42 m², Chomutov
Kód zakázky: 79757, Pronájem bytu 1+1, Chomutov, BřezeneckáHledáte útulné bydlení k pronájmu? Nabízíme vám světlý a moderně……
8 800,- Kč/měsíc Holešická, Chomutov
- Prohlédněte si také inzerci nemovitostí v nejbližším okolí: byty Jirkov, byty Ústí nad Labem, byty Žatec, byty Děčín.
- Podívejte se na další nabídky bytů v osobním vlastnictví v Chomutově: prodej bytů v osobním vlastnictví v Chomutově, pronájem bytů v osobním vlastnictví v Chomutově
- Prohlédněte si nejhledanější výrazy z nabídky v rubrice: 2+1 Ostrava, pronájem Ostrava Poruba, byty Ostrava Poruba, 3+1 Praha, 2+kk Praha.
- Další podobné inzeráty najdete na stránce byty v Chomutově.
- Nenašli jste, co jste hledali? Prohlédněte si další inzeráty v rubrice byty nebo v sekci Inzerce nemovitostí.














