- Typ domu: rodinný dům
- Druh nabídky: prodej rodinných domů v Pardubicích
- Stav objektu: novostavba
- Užitná plocha: 135 m2
- Plocha pozemku: 655 m2
- Energetická náročnost budovy: B - Velmi úsporná
- Druh objektu: dřevěná
- Zastavěná plocha: 87
- Odpad: Kanalizace
- K nastěhování: 29.05.2025
- Doprava: MHD, vlak, autobus, silnice
- Voda: Voda - dálkový vodovod
- Lokalita:
Prodej domu s užitnou plochou 135 m2 na rovinatém pozemku o výměře 655 m2 v nově vzniklé čtvrti Zelené Doubravice. Lokalita plná zeleně les a přírodní památka U Pohránovského rybníka za plotem, přitom veškeré služby města pár minut autem či MHD.
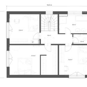
Tento kompaktní dům s moderním designem nabízí promyšlenou otevřenou dispozici s velkými prosklenými plochami, které se rozprostírají přes obě podlaží, tím přinášejí dostatek světla do obývací, jídelní i kuchyňské části. Velké prosklené dveře vedou přímo na prostornou terasu, což je ideální místo pro relaxaci a společenská setkání. V horním patře se nachází ložnice s krásným výhledem a další dvě prostorné místnosti, které poskytují klid a naprosté soukromí.
Mimořádně úsporný dům plný moderních technologií, kde tepelné čerpadlo vzduch - vzduch v zimě dům vyhřeje, v létě zase ochladí, a fotovoltaická elektrárna systém ON GRID s akumulací do zásobníku TUV: využívá sluneční energii pro ohřev užitkové vody v 200 litrovém zásobníku.
Dům nabízíme v provedení 5+kk a Vám stavbu dodá RD Rýmařov.
Tento dům dokonale spojuje moderní estetiku s praktickými potřebami rodiny, což z něj činí skvělou volbu pro pohodlné rodinné bydlení.
Zelené Doubravice - místo, kde děti běhají bez obav venku s kamarády a sousedé se znají jménem.
Pokud hledáte moderní rodinné bydlení s nízkými provozními náklady v lokalitě plné zeleně a nebo výhodnou investici, neváhejte a sjednejte si schůzku.
Kontakt
Tomáš Horák
Další podobné inzeráty:
-
Novostavba RD, 4+kk, 83 m2, pozemek 660 m2, Pardubice - Dou...
Kód zakázky: 232082, Prodej domu se zastavěnou plochou 101 m2 na rovinatém pozemku o výměře 660 m2 v nově vzniklé čtvrti Zelené……
11 164 040,- Kč Doubravice, Pardubice -
Prodej, Rodinný dům, 250 m2
Kód zakázky: 132457, Nabízíme k prodeji rodinný dům nedaleko centra krajského města Pardubice v ulici Boženy Němcové. Jedná se……
10 490 000,- Kč Boženy Němcové, Pardubice, Zelené Předměstí -
Prodej vil ve Španělsku s výhledem na Moře - oblast Alicant...
Kód zakázky: 230901, Nemovitost ve Španělsku - Prodej vil ve výstavbě v oblasti Alicante. Z letiště Alicante je to pouhých 20……
11 200 000,- Kč Jana Palacha, Pardubice, Zelené Předměstí -
Prodej, Vila/Rezidence, 591 m2
Kód zakázky: 133221, Představuje výjimečnou příležitost pro náročné zájemce hledající kombinaci historického kouzla, prestižní……
21 500 000,- Kč Bulharská, Pardubice, Bílé Předměstí -
Prodej novostavby rodinného domu 5+kk, 108 m2, pozemek 376 m...
Kód zakázky: 229847, Nabízíme k prodeji moderní novostavbu rodinného domu s dispozicí 5+kk o celkové užitné ploše 108 m2……
8 968 960,- Kč Doubravice, Pardubice -
Prodej rodinné domy, 124 m² - Pardubice - Lány na Důlku
Kód zakázky: 71444, Nabízím Vám k prodeji rodinný dům k dokončení v krásné lokalitě Lány na Důlku v blízkosti Pardubic (10 min……
7 490 000,- Kč Pardubice VI
- Prohlédněte si také inzerci nemovitostí v nejbližším okolí: rodinné domy Vysoké Mýto, rodinné domy Svitavy, rodinné domy Ústí nad Orlicí, rodinné domy Chrudim.
- Podívejte se na další nabídky rodinných domů v Pardubicích: prodej rodinných domů v Pardubicích, pronájem rodinných domů v Pardubicích
- Další podobné inzeráty najdete na stránce rodinné domy v Pardubicích.
- Nenašli jste, co jste hledali? Prohlédněte si další inzeráty v rubrice rodinné domy nebo v sekci Inzerce nemovitostí nebo inzeráty ze stejné lokality na stránce inzerce Pardubice







