- Druh nabídky: prodej bytů v Praze 7
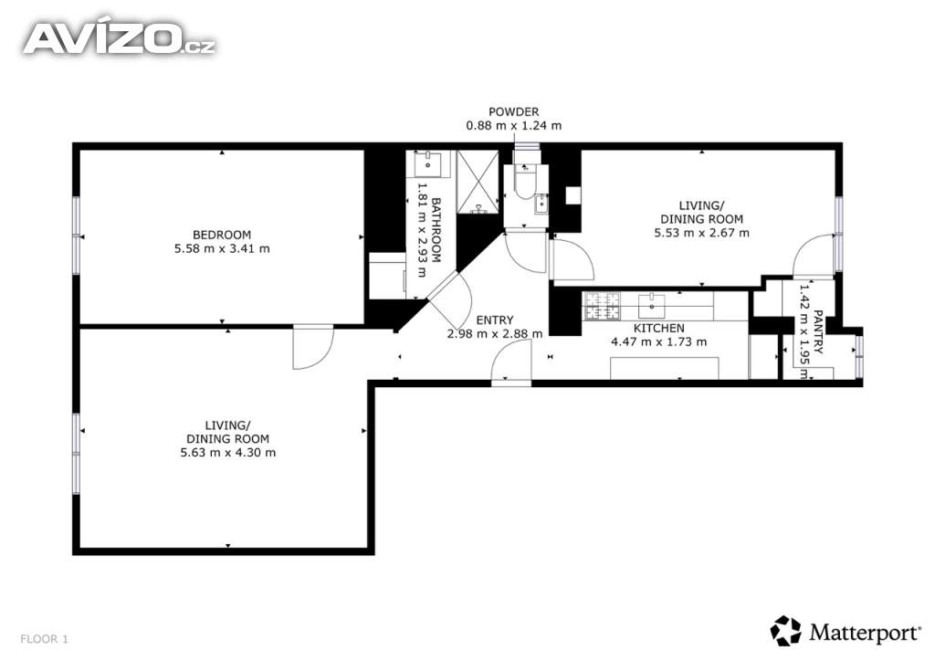
- Velikost bytu: 3+1
- Vlastnictví: osobní
- Typ budovy: cihlový
- Stav objektu: po rekonstrukci
- Plocha: 77 m2
- Podlaží: 2
- Energetická náročnost budovy: G - Mimořádně nehospodárná
- Plocha sklepu (m2): 7
- Elektřina: Elektro - 230 V
- Počet podlaží objektu: 4
- Odpad: Kanalizace
- Topení: Lokální - plynové
- Doprava: MHD, dálnice, vlak, autobus, silnice
- Počet podlaží pod zemí: 1
- Voda: Voda - dálkový vodovod
- Lokalita:
Upozornění: Tato nabídka je rezervována konkrétním zájemcem a v rezervační lhůtě není k dispozici! Exkluzivně doporučuji ke koupi moderní a světlý byt o dispozici 3+1 v žádané lokalitě Prahy 7 - Holešovice, ulice Jateční. Byt se nachází v klidné části čtvrti s výbornou dopravní dostupností a kompletní občanskou vybaveností v bezprostředním okolí. Byt prošel kvalitní rekonstrukcí.
Součástí rekonstrukce byla výměna všech elektrických rozvodů, rozvodů vody i odpadů. Instalován byl nový plynový kotel včetně nového komínu, což zajišťuje úsporné a spolehlivé vytápění. Byla vybudována nová koupelna a samostatné WC. Kuchyně je vybavena novou kuchyňskou linkou včetně moderních elektrospotřebičů. Byt má plastová okna, která zajišťují dobrou tepelnou a zvukovou izolaci.
Dispozice 3+1 nabízí praktické rozdělení prostoru pro rodinu, pár i jednotlivce, kteří preferují dostatek místa pro práci či volnočasové aktivity. Obývací pokoj je prostorný a světlý, kuchyň je samostatná a dobře řešená. Ložnice i další pokoj umožňují variabilní využití jako dětský pokoj, pracovna nebo pokoj pro hosty. Celkově byt působí velmi moderním a příjemným dojmem.
Holešovice patří mezi dynamicky se rozvíjející čtvrti, které kombinují rychlou dostupnost centra, bohatou nabídku služeb, kultury a příjemná zákoutí pro relaxaci. V okolí najdete obchody, restaurace, kavárny, školy, zdravotnická zařízení i místa pro volnočasové aktivity. Tramvajové zastávky jsou v docházkové vzdálenosti a umožňují rychlé spojení do centra Prahy i dalších částí města. Metro linky C (Vltavská či Nádraží Holešovice) je rovněž blízko. Do centra se dostanete přibližně za deset minut.
Tento byt je vhodný pro ty, kteří hledají moderní a bezstarostné bydlení v jedné z nejpopulárnějších pražských lokalit. Klidná ulice Jateční nabízí příjemnou atmosféru, přesto se nachází v docházkové vzdálenosti od všeho důležitého. Byt může být skvělou volbou jak pro vlastní bydlení, tak jako investice díky atraktivitě lokality.
V případě zájmu o osobní prohlídku mě neváhejte kontaktovat. Rád vám byt ukážu a poskytnu veškeré potřebné informace.
Průkaz energetické náročnosti budovy se zpracovává, v souladu se zákonem uvádíme kategorii G.
Kontakt
David Evropejský
Další podobné inzeráty:
-
HLEDÁME PRONÁJEM GARSONIERY NEBO BYTU 1+KK V RODINNÉM DOMĚ
Hledáme pronájem garsoniéry nebo bytu 1+kk v rodinném domě u starších lidí, seniorů. Hlavní město Praha, Praha- východ nebo……
Praha 7 (170 00) -
Prodej bytu 1+1, 46 m2 - Praha 7, Letná, ul. Dobrovského
Kód zakázky: 231969, Bydlení s atmosférou Letné - jedné z nejživějších a nejžádanějších částí Prahy. Byt o dispozici 1+1 a……
7 800 000,- Kč Dobrovského, Praha, Holešovice -
Patrový hausbót až 280 m2 v Praze 7 Holešovice, Sanderova
Kód zakázky: 230269, Nabízíme ke koupi prostorný patrový hausbót k rekonstrukci o celkové ploše až 280 m2, umístěn na……
4 000 000,- Kč Sanderova, Praha, Holešovice -
Prodej bytu 2+kk, 48,7 m², U Průhonu, Praha - Holešovice
Kód zakázky: 7098, Nabízíme k prodeji moderní byt 2+KK v atraktivní lokalitě Holešovice, na adrese Ulice U Průhonu, Praha……
8 300 000,- Kč U průhonu, Praha, Holešovice -
Prodej bytu 2+1 s balkonem, Malá Plynární, Praha 7 - Holešo...
Kód zakázky: 232227, Nabízíme na prodej světlý byt 2+1 s balkonem o velikosti 2, 8 m2, v žádané lokalitě Praha 7 - Holešovice……
8 750 000,- Kč Malá Plynární, Praha, Holešovice -
Pronájem bytu 2kk, 45 m2, Toužimská, Praha 9
Kód zakázky: 232700, Dovoluji si nabídnout k pronájmu bytovou jednotku na adrese Toužimská, Letňany, která je o dispozici 2kk……
21 900,- Kč/měsíc Toužimská, Letňany, Praha
- Prohlédněte si také inzerci nemovitostí v nejbližším okolí: byty Praha 9, byty Praha 1, byty Praha 3, byty Praha 2.
- Podívejte se na další nabídky bytů v osobním vlastnictví v Praze 7: prodej bytů v osobním vlastnictví v Praze 7, pronájem bytů v osobním vlastnictví v Praze 7
- Prohlédněte si nejhledanější výrazy z nabídky v rubrice: 2+1 Ostrava, byty Ostrava Poruba, studentský pokoj, 3+1 Praha, pronájem Ostrava Poruba.
- Další podobné inzeráty najdete na stránce byty Praha.
- Nenašli jste, co jste hledali? Prohlédněte si další inzeráty v rubrice byty nebo v sekci Inzerce nemovitostí.

























